Weinkellerei Erste + Neue, Kaltern
a project with Walter Angonese Architekt



Der Gründungsbau der Ersten & Neuen Genossenschaft Kaltern von Walter Norden wurde zweimal erweitert, einmal 1961 in östlicher Richtung, später in den achtziger Jahren des 20. Jahrhunderts nach Norden. Der nunmehr vorliegende Projektvorschlag agiert konzeptionell über einen „Zwillingsbau“, der die Volumen, die Dachtypologie und andere architektonische Elemente des Ursprungsbaus (u.a. eine Reinterpretation der 1961 abgebrochenen Rampe) in einer zeitgenössischen Sprache und einem sinnstiftenden Dialog zu verbinden und über eine semantisch reflektierte und tektonisch legitimierte Materialisation einzulösen versucht.
Der heutige Produktions- und önotechnische Standard der Vinifikation über die „natürliche Gravitation“ der Maische und die oben erwähnte beschränkt zur Verfügung stehenden Freiflächen erfordern eine Verlagerung des Wirtschaftshofes auf die oberste Ebene, welche über zwei großzügige Zufahrtsrampen erschlossen wird. Dieser Wirtschaftshof ist aus funktionalen Überlegungen überdacht (im zentralen Bereich mit einer transparenten, nicht einsichtbaren Shed-Dachkonstruktion in Stahl und Glas), während die Randbereiche das Thema der bestehenden Dachsattelflächen, zeitgenössisch interpretiert, zu übernehmen versuchen.






Der ansonsten offene Wirtschaftshof im Obergeschoss wird für das Abladen der Maische während der Erntezeit verwendet; hier lagern außerhalb der Erntezeit önotechnische Gerätschaften, wie die Abladebottiche in Edelstahl, Verbindungsrohre und Leergut (Flaschen) bzw. es parken hier die Mitarbeiter der ersten + neuen Kellerei. Die beiden Erschließungsrampen spannen sich von der Kellereistraße her auf und sind so angelegt, dass bei der Ernte und bei An- und Ablieferung keine gefährlichen Kreuzungspunkte entstehen. Zusätzlich zu diesen beiden Rampen führt eine großzügig bemessene Treppe vom Vorplatz am ehemaligen Bahnhofsareal zu besagtem Wirtschaftshof
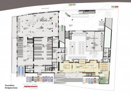
Im Erdgeschoss befinden sich das Weingeschäft, die Weinausstellung und der Verkostungsraum (wie derzeit in der Weindiele), eine Ebene des Gärturms sowie ein überdachter Bereich zur Kellereistraße hin, der für die Lagerung von Trester, für die Waage etc. genutzt wird. Der Geschäfts-, Verkaufs-, Beratungs- und Verkostungsraum spannt sich über die gesamte Gebäudebreite auf. Am südwestlichen Eck schließt ein kleiner Patio mit einem kleinen Garten (der vom Verkostungsbereich aus erschlossen wird) den Neubau ab.

Der aufgehende Bauteil des Neubaus ist in sehr hellem Sichtbeton, welcher zusätzlich mit einer weißen Fassadenlasur versehen wird, vorgesehen. Somit entsteht ein sehr hell wirkender (analog zum Bestandsbau), leicht strahlender Baukörper, der den Anspruch des zeitgenössischen Zwillings zum Bestand einzulösen versucht. Rautenöffnungen an der Ost- und Westfassade sowie in der Dachstruktur relativieren durch ihre ungewohnte Form den produktionstechnischen Charakter und versuchen, eine Sinnlichkeit zu vermitteln.

Location: Caldaro Kaltern, Italy
Year: 2015-16
Status: Unbuilt
Program: Winery
Project architect: Walter Angonese Architekt, Flaim Prünster Architekten
Visualization: Rendervalley
flaim prünster
architekten
via Dante 28
39100 bolzano italy
P.Iva. 03146590215
architetto Francesco Flaim
Quirin Prünster Architekt
© 2025 flaim prünster architekten, All rights reserved.
Design: Studio Mut