Scuola di secondo grado
Pelago, Italy
in collaboration with AMAA Architects


La demolizione e ricostruzione della scuola secondaria di primo grado Lorenzo Ghiberti a San Francesco, Pelago è resa necessaria dalle carenze antisismiche e di prestazioni energetiche della struttura esistente. Tale necessità offre la possibilità di applicare un approccio innovativo per un edificio scolastico in grado di entrare in dialogo con il territorio e con la comunità che lo circonda. Il progetto accoglie le linee guida della commissione nel tentativo di tradurre in termini architettonici le figure e gli obiettivi di un edificio scolastico di nuova generazione.
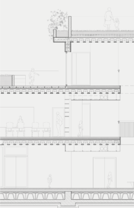
Il progetto ambisce a creare un luogo di incontro in grado di coinvolgere non solo studenti e docenti, ma l'intera comunità di Pelago. Un edificio pragmatico per il suo inserimento nella topografia esistente che si articola su tre livelli, con spazi permeabili che aprono sguardi sul paesaggio circostante. I tre livelli di terrazzamenti si innestano nel terreno affermando il forte legame tra natura ed artificio, mitigando la visibilità d’intervento. Tutti gli ambienti sono stati ideati secondo il principio di modularità, gli arredi progettati ad-hoc offrono ambienti flessibili, in grado di accompagnare l’alternarsi delle diverse attività e fasi del lavoro didattico. Gli spazi comuni sono pensati per creare momenti di pausa, di approfondimento, ma soprattutto di socializzazione e incontro tra gli studenti che stanno sviluppando la propria identità sociale.




La concezione strutturale dell’edificio è basata su un sistema costruttivo a pilastri e solai in cemento armato prefabbricato, mentre l'utilizzo del cemento armato gettato in opera è limitato alla realizzazione delle opere di fondazione a platea e delle paratie. I tamponamenti esterni non strutturali sono eseguiti con vetrate suddivise in elementi apribili e fissi, mentre le pareti divisorie interne vengono realizzate con sistemi a secco di cui una parte come pareti attrezzate in legno. L'utilizzo di una struttura prefabbricata agevola una gestione efficace del cantiere in tempi ridotti. I criteri generali tecnico costruttivi vengono elaborati nel rispetto della vigente normativa per la sicurezza strutturale degli edifici e la pubblica incolumità, in riferimento anche ai requisiti antisismici richiesti dalla zonizzazione.

Location: Pelago, Italy
Year: 2022
Status: Competition "Futura,
la scuola per l'Italia di domani"
Program: Middle School
Architecture: Flaim Prünster Architekten
Consultancy: Sinergo s.p.a
Visualization: FRAMAX
flaim prünster
architekten
via Dante 28
39100 bolzano italy
P.Iva. 03146590215
architetto Francesco Flaim
Quirin Prünster Architekt
© 2025 flaim prünster architekten, All rights reserved.
Design: Studio Mut